Copernicus Science Centre

Objective

The goal was to create an interactive bench with two rotating seats connected by uniquely shaped gears, showing how different forms can work together in one mechanical system.

Main challenge

Designing and producing irregular gears that meshed smoothly and ensured proper movement was technically demanding and required high precision.

Scope

Developing the concept, preparing technical drawings, and overseeing the production to ensure the design worked as planned.

Concept

The idea was to design an interactive bench where two seats rotate at different speeds, connected by a visible system of interlocking gears. The bench invited users to physically engage with the mechanism, making the relationship between motion, shape, and engineering principles tangible and playful.

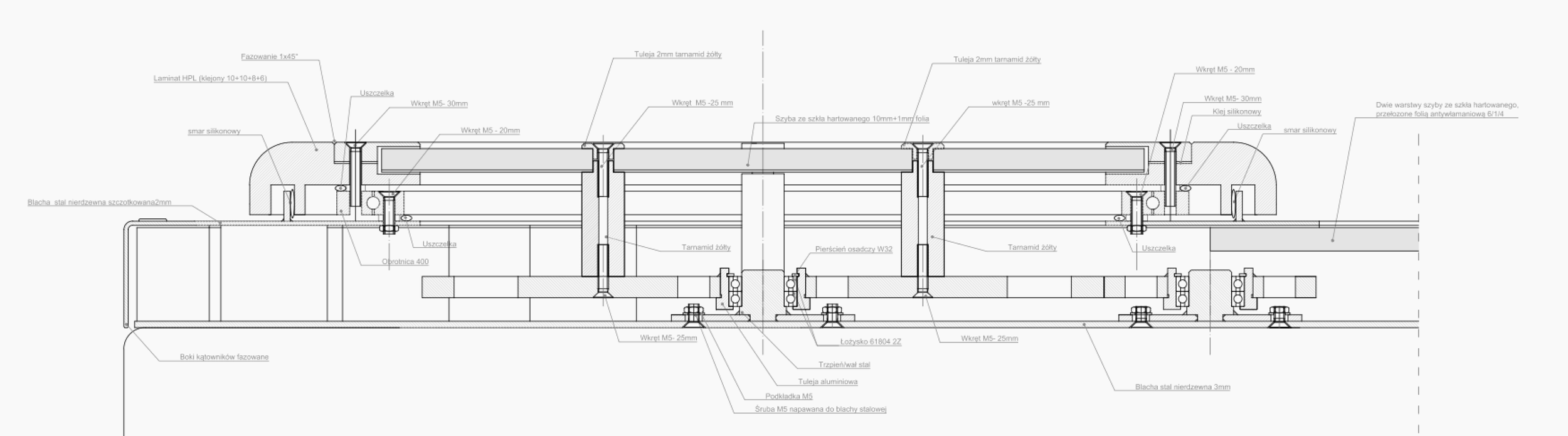
Technical Drawings

Once the concept was defined, I developed detailed technical drawings for the gear system and the overall structure. Special attention was given to gear profiles, distances, and tolerances to ensure the system would work smoothly. The drawings included specifications for materials, dimensions, and assembly guidelines, forming a complete set for fabrication.

Production

During the production phase, I provided design supervision to ensure the final result stayed true to the original idea. This included working closely with fabricators, reviewing prototypes, and making necessary adjustments on-site. My role was to bridge the gap between design and execution, ensuring both mechanical functionality and visual quality.

Previous
Previous

Concrete furniture | Industrial design

Next
Next

Branding | Botanea